2 bed Maisonette for Sale
Fairfield Drive, HARROW, Middlesex
£325,000Description
- TWO BEDROOM GROUND FLOOR MAISONETTE
- RECENTLY REFURBISHED
- CUL-DE-SAC LOCATION
- SPACIOUS LIVING ROOM
- DOUBLE GLAZING & GAS CENTRAL HEATING
- PRIVATE REAR GARDEN
- 130 YEAR LEASE REMAINING
- NO ONWARD CHAIN DELAYS
** NO ONWARD CHAIN ** A recently refurbished two bedroom ground floor maisonette benefiting from a 130 year lease and situated in a peaceful cul-de-sac, close to an excellent range of shops, cafes and bars in Wealdstone and Harrow town centre, while the tranquil open spaces of Headstone Manor Park are within easy reach. The property briefly comprises entrance porch, spacious living room, kitchen with direct access to a private rear garden, two bedrooms and bathroom. Further benefits include double glazing and gas central heating.
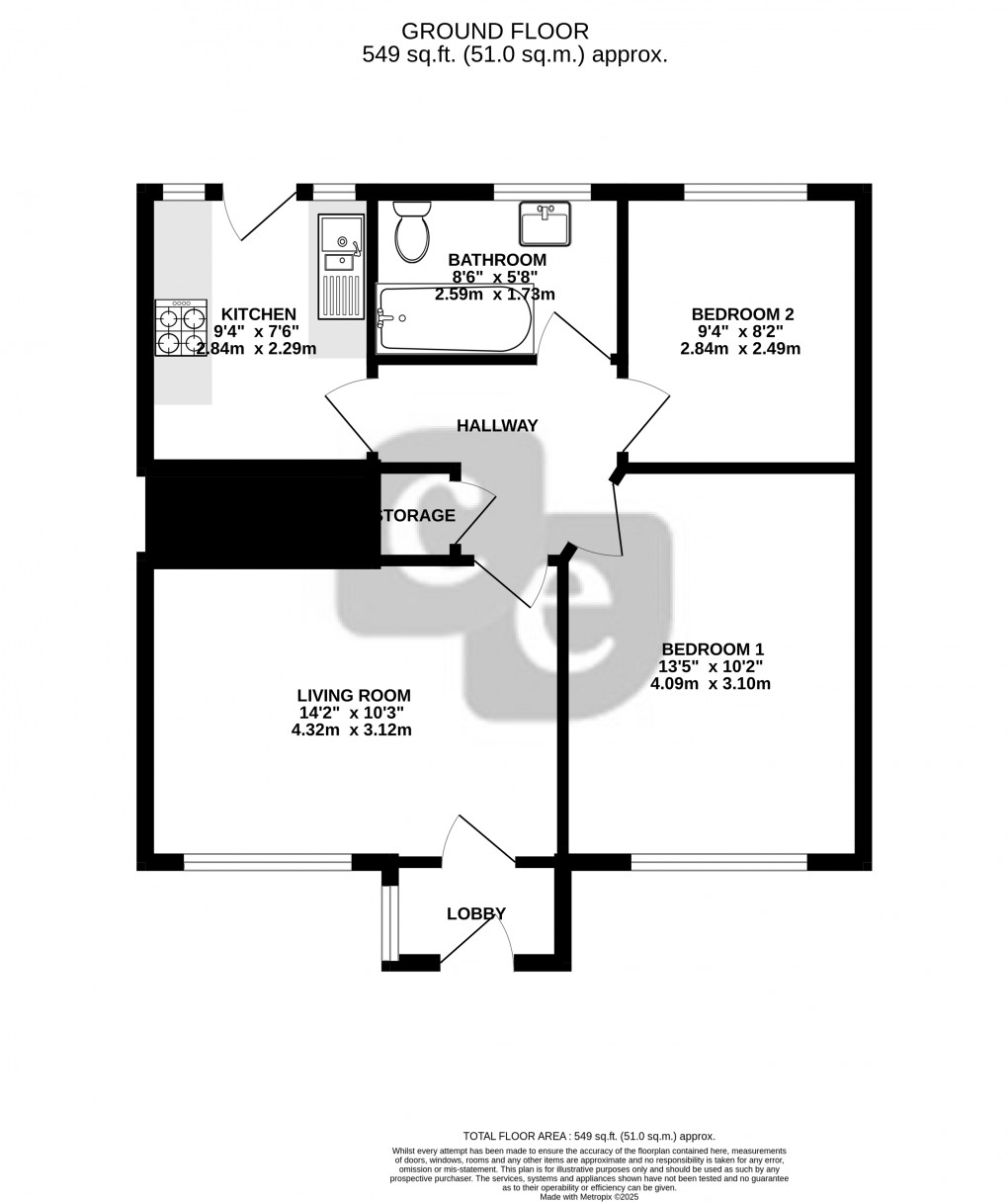
Ground Floor
Porch
Entrance into porch via front aspect door, side aspect frosted double glazed window, carpeted flooring.
Living Room
14' 2" x 10' 3" (4.32m x 3.12m) Front aspect double glazed window, radiator, power points, coved ceiling, carpeted flooring.
Inner Hallway
Radiator, power points, storage cupboard housing meters, carpeted flooring.
Kitchen
9' 4" x 7' 6" (2.84m x 2.29m) Rear aspect double glazed door to garden, two rear aspect double glazed windows, range of wall and base level units with roll top work surfaces, one and a half bowl sink with drainer, integrated gas hob with oven below and overhead extractor fan, part tiled walls, wall mounted boiler, space for fridge/freezer, power points, wooden flooring.
Bedroom One
13' 5" x 10' 2" (4.09m x 3.10m) Front aspect double glazed window, radiator, power points, carpeted flooring.
Bedroom Two
9' 4" x 8' 2" (2.84m x 2.49m) Rear aspect double glazed window, radiator, power points, carpeted flooring.
Bathroom
8' 6" x 5' 8" (2.59m x 1.73m) Rear aspect frosted double glazed window, low level W/C, pedestal hand wash basin, panel enclosed bath with mixer tap and shower attachment, heated towel rail, radiator, part tiled walls, tiled flooring.
Outside
Rear Garden
Side access to front via side aspect gate.
Floorplan
