4 bed Semi-Detached House for Rent
Birchmead Avenue, Pinner, Greater London
£3,100 PCMDescription
- AVAILABLE IMMEDIATELY
- FOUR BEDROOMS
- EXTENDED SEMI DETACHED HOUSE
- TWO BATHROOMS
- VERY WELL MAINTAINED THROUGHOUT
- OPEN PLAN FITTED KITCHEN/BREAKFAST ROOM
- UNDERFLOOR HEATING
- OFF STREET PARKING AND GARAGE
- LOCATED 0.6 MILES FROM PINNER METROPOLITAN LINE STATION STATION
- 113 ft PRVIATE REAR GARDEN
** AVAILABLE IMMEDIATELY ** An extended and very well maintained four bedroom, two bathroom semi detached house situated on a peaceful residential road within 0.6 miles from Pinner Metropolitan Line station. The property briefly comprises entrance hallway, bay fronted living room, modern fitted open plan kitchen/breakfast room with integrated appliance, downstairs shower room, two bedrooms and family bathroom off first floor landing and two bedrooms off second floor landing. Further benefits include double glazing, gas central heating, off street parking via own driveway, garage and a large private rear garden.
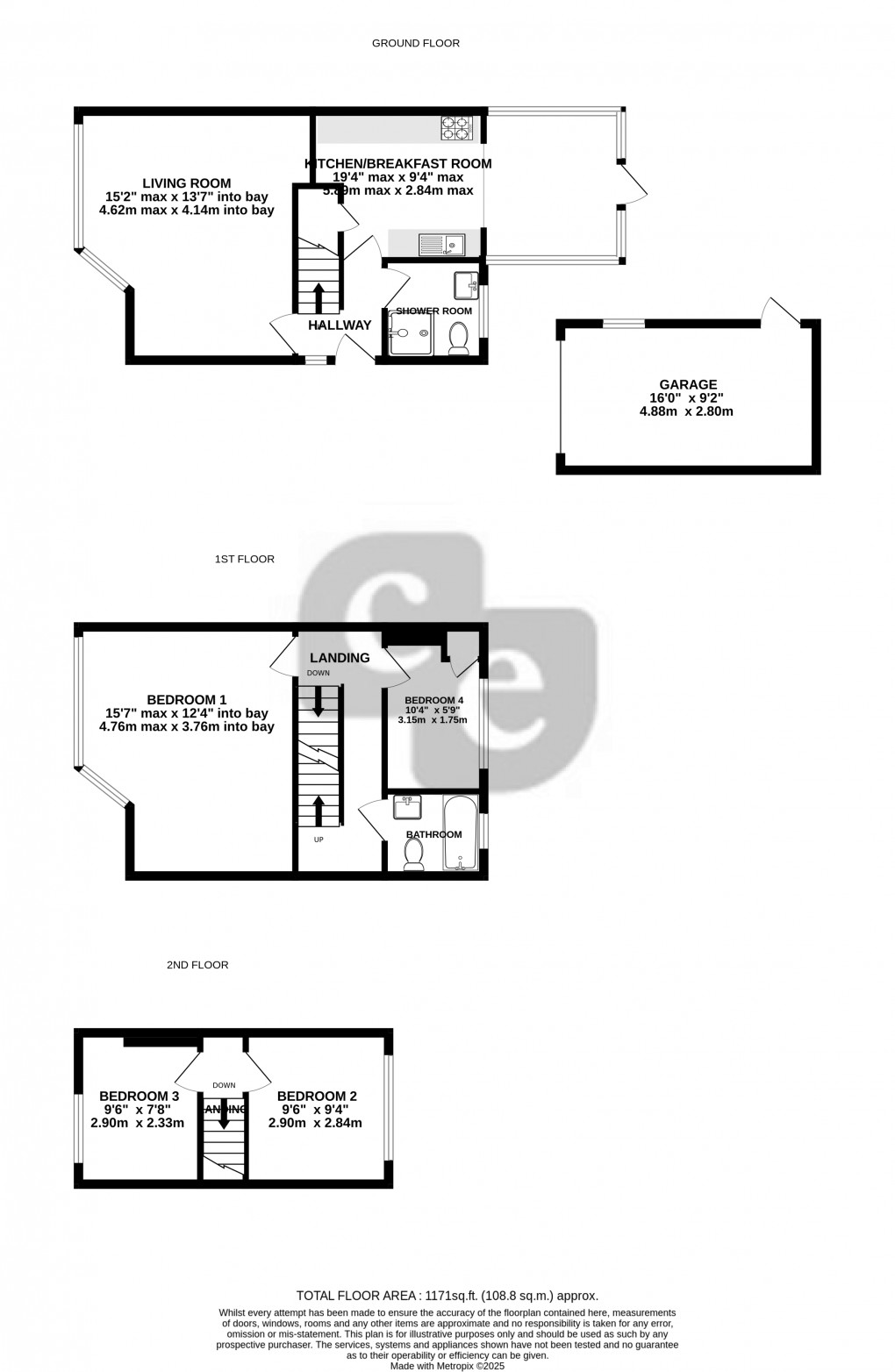
Ground Floor
Hallway
Downstairs Shower Room
Living Room
15' 2" max x 13' 7" into bay (4.62m x 4.14m)
Kitchen/Breakfast Room
19' 4" max x 9' 4" max (5.89m x 2.84m)
First Floor
Landing
Bedroom One
15' 7" max x 12' 4" into bay (4.75m x 3.76m)
Bedroom Four
10' 4" x 5' 9" (3.15m x 1.75m)
Bathroom
Second Floor
Landing
Bedroom Two
9' 6" x 9' 4" (2.90m x 2.84m)
Bedroom Three
9' 6" x 7' 8" (2.90m x 2.34m)
Outside
Front Garden
Off street parking
Rear Garden
113' 0" x 21' 11" (34.44m x 6.68m)
Garage
16' 0" x 9' 2" (4.88m x 2.79m)
Floorplan
